About this Land Commercial in Sechelt District
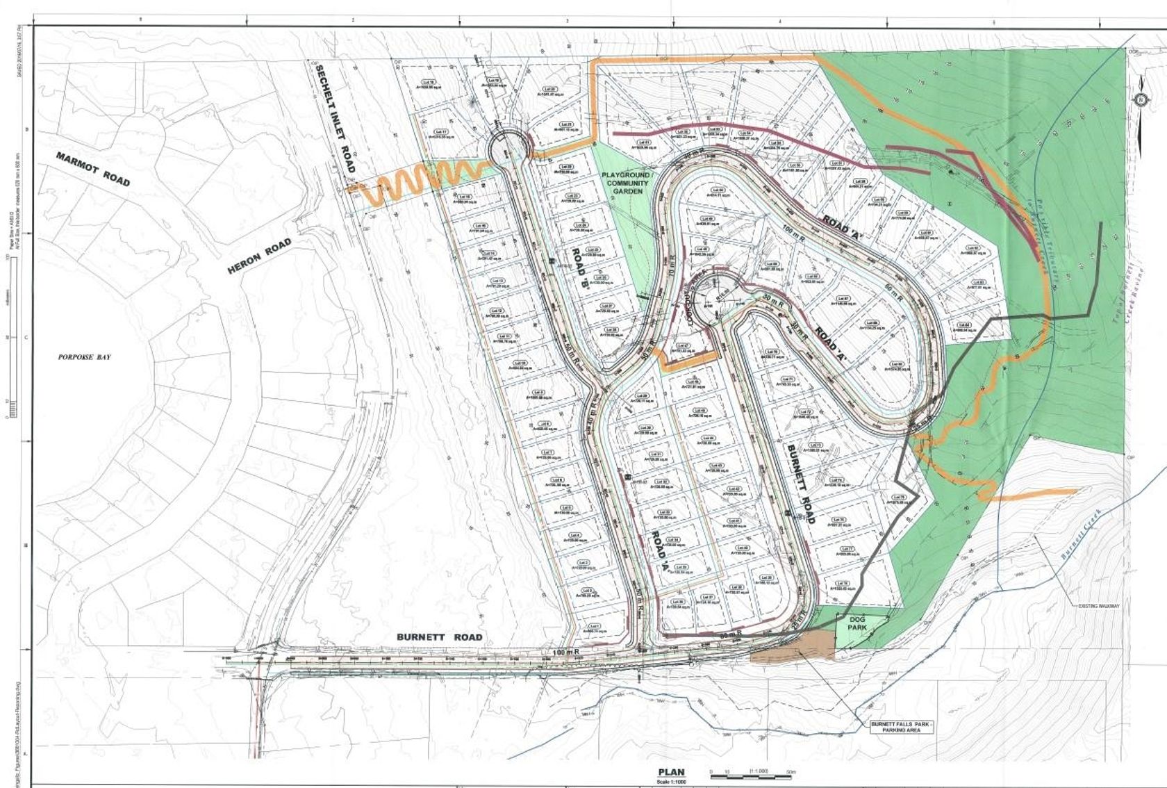
Developers welcome to a large bare 1.79 acre lot located in the heart of Sechelt on the sunshine coast. A developer can build apartment buildings or townhomes. Density ranges from 1.4FSR for strata and 2.8FSR for rental products. A DP for a 3 storey, grade level parking and 36 doors is in hand and shovel ready. Can you double the doors for a rental building to 72+. The development site is in a central location with all amenities minutes away.
Listed by Jovi Realty Inc..
							 Brought to you by your friendly REALTORS® through the MLS® System, courtesy of Ken Stef  for your convenience.
							Brought to you by your friendly REALTORS® through the MLS® System, courtesy of Ken Stef  for your convenience.
							Disclaimer: This representation is based in whole or in part on data generated by the Chilliwack & District Real Estate Board, Fraser Valley Real Estate Board or Real Estate Board of Greater Vancouver which assumes no responsibility for its accuracy.
						
More Details
- Type: Land Commercial

Walkscore Of This Listing
More About Sechelt District, Sunshine Coast
latitude: 49.4769077
longitude: -123.758342646
Postal Code: V0N 3A0
 
	
     
						 
						 
						 
                 
                 
                 
                